1. ホーム
  2. 中古一戸建て情報検索
  3. 物件詳細

神戸で新築・中古住宅購入なら、神戸で50年の実績。アイビスグループ

新築・中古住宅を買う

不動産・建築

神戸市内限定の
多様なご提案

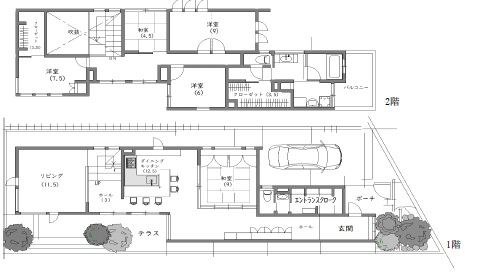
中古一戸建て ★別荘にいるかのような気分を味わえる空間!
★豊富な収納スペース!
★全館空調完備!夏は涼しく、冬は温かい♪
★2階9 帖は間仕切り可能!お子様のお部屋に最適♪
★食器洗浄乾燥機付
★1 階和室は掘りごたつ式のテーブルを設置したダイニング!客間としてもお使いいただけます♪
★四季を感じれる玄関!
★ハイグレード設備完備!
★玄関から中庭に視線が抜け開放感が気持ちいい!
★吹き抜けがおしゃれ!
★キッチンカウンター食事するのに十分な広さ確保!

★別荘にいるかのような気分を味わえる空間!
★豊富な収納スペース!
★全館空調完備!夏は涼しく、冬は温かい♪
★2階9 帖は間仕切り可能!お子様のお部屋に最適♪
★食器洗浄乾燥機付
★1 階和室は掘りごたつ式のテーブルを設置したダイニング!客間としてもお使いいただけます♪
★四季を感じれる玄関!
★ハイグレード設備完備!
★玄関から中庭に視線が抜け開放感が気持ちいい!
★吹き抜けがおしゃれ!
★キッチンカウンター食事するのに十分な広さ確保!
価格
22,000 万円
交通
阪急神戸線「六甲」駅 徒歩12分 / JR東海道本線「六甲道」駅 徒歩25分
所在地
兵庫県神戸市灘区篠原北町 
築年月
2019年8月
建物面積
182.90 m2
土地面積
209.22 m2
間取り
5LDK
物件番号
b20260125-Y07
  • 室内洗濯機置場
  • バス・トイレ別
  • 駐車場付
  • 間取り図・写真有り
  • リフォーム済み

物件詳細

物件種別 中古一戸建て 建物構造 木造
建ぺい率 60 % 駐車場
容積率 150 % 土地権利 所有権
地目 宅地 私道負担面積
建築条件 接道状況 北東側約6.6m
都市計画区域 市街化区域 用途地域 第1種低層住居専用地域
現況 空家 他の法令上の制限 第1種高度地区、準防火地域
取引態様 売主 引渡日 相談
設備
  • 室内洗濯機置場
  • バス・トイレ別
  • 駐車場付
  • 間取り図・写真有り
  • リフォーム済み
学校区 美野丘小学校
長峰中学校
備考
周辺地図
  • この物件について問い合わせる
  • 検索条件を変更

    下記に必要な項目を入力後「確認画面へ」ボタンをクリックしてください。

    物件名
    氏名 必須
    ふりがな 必須
    電話番号 必須
    FAX番号
    メールアドレス 必須
    郵便番号
    住所
    お問い合わせ概要 必須
    その他お問い合わせ内容




    TOPへ
    私たちは神戸市内に営業エリアを限定しています
    神戸買い替えシステム神戸探建たい バナー神戸リノベーション倶楽部 バナー
    0788610220来店予約・お問い合わせはこちらこのページの先頭へ