HOME
注文住宅を建てる
こべっこハウスとは?
5つのこだわり
施工実績・お客様の声
新築・中古住宅を買う
土地探し+注文住宅
中古住宅+リノベ
賃貸住宅を探す
家をリフォームする
リフォームTOP
Re神戸とは?
リフォームの種類
リフォームの流れ
リノベーション
会社案内
会社概要・アクセス
神戸密着宣言
代表からひとこと
スタッフ・協力会社募集
toggle navigation
アイビスGROUP
HOME
注文住宅を建てる
新築・中古住宅を買う
賃貸住宅を探す
家をリフォームする
土地探し+注文住宅
中古住宅探し+リノベーション
会社案内
不動産の売却・活用・相続をお考えの方はこちら
スタッフ・協力会社募集
公式SNS
ホーム
中古一戸建て情報検索
物件詳細
新築・中古住宅を買う
新築住宅を購入
中古住宅+リノベーション
土地+注文住宅
買い替え
神戸で新築・中古住宅購入なら、神戸で50年の実績。アイビスグループ
神戸市内限定の
多様なご提案
新築住宅を購入
中古住宅+リノベーション
土地+注文住宅
買い替え
中古一戸建て情報はこちら
中古マンション情報はこちら
中古一戸建て
☆大きな吹き抜けで開放的なリビングと2階10帖主寝室にロフト付き
☆豊かな眺望と公園も隣接です
☆角地 駐車2台 広いお庭
☆大きな吹き抜けで開放的なリビングと2階10帖主寝室にロフト付き
☆豊かな眺望と公園も隣接です
☆角地 駐車2台 広いお庭
2,380
万円
神戸電鉄有馬線「花山」駅 徒歩14分
兵庫県神戸市北区花山中尾台3
2007年1月
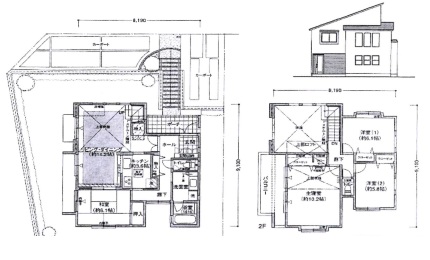
111.45 m
2
209.30 m
2
4LDK
物件番号
a20251227-Y01
室内洗濯機置場
バス・トイレ別
2階以上
都市ガス
間取図
外観1
外観2
接道
物件詳細
物件種別
中古一戸建て
建物構造
木造
建ぺい率
60 %
駐車場
有り
容積率
80 %
土地権利
所有権
地目
私道負担面積
建築条件
接道状況
公道幅員約6.0m
都市計画区域
市街化区域
用途地域
第一種低層住居専用地域
現況
空家
他の法令上の制限
花山中尾台地区地区計画有り
取引態様
媒介
引渡日
相談
設備
室内洗濯機置場
バス・トイレ別
2階以上
都市ガス
学校区
花山小学校
大池中学校
備考
周辺地図
下記に必要な項目を入力後「確認画面へ」ボタンをクリックしてください。
物件名
氏名
必須
ふりがな
必須
電話番号
必須
FAX番号
メールアドレス
必須
郵便番号
住所
お問い合わせ概要
必須
物件についてもっと詳しい情報がほしい
店舗に行って相談したい
周辺の環境や施設を詳しく知りたい
条件に合う他の物件も紹介してほしい
とりあえず連絡がほしい
その他お問い合わせ内容
私たちは神戸市内に営業エリアを限定しています