1. ホーム
  2. 新築物件情報検索
  3. 物件詳細

神戸で新築・中古住宅購入なら、神戸で50年の実績。アイビスグループ

新築・中古住宅を買う

不動産・建築

神戸市内限定の
多様なご提案

一戸建て ■JR神戸線 須磨駅徒歩6分、山陽電鉄本線 山陽須磨駅徒歩4分
■断熱等性能等級5、一次エネルギー消費量等級6

■JR神戸線 須磨駅徒歩6分、山陽電鉄本線 山陽須磨駅徒歩4分
■断熱等性能等級5、一次エネルギー消費量等級6
価格
4580 万円
交通
山陰電鉄本線「山陽須磨」駅徒歩4分 / JR神戸線「須磨駅」徒歩6分
所在地
神戸市須磨区関守町二丁目
築年月
2026年1月
建物面積
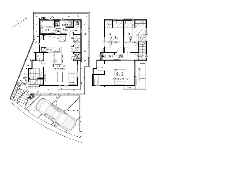
83.06 m2
土地面積
110.49 m2
間取り
3LDK
物件番号
a202604011-M04
  • 室内洗濯機置場
  • バス・トイレ別
  • 2階以上
  • フローリング
  • 駐車場付
  • システムキッチン
  • カウンターキッチン
  • TV付インターホン
  • 都市ガス
  • 間取り図・写真有り
  • 駐輪場
  • バイク置場

物件詳細

物件種別 一戸建て 建物構造 木造
建ぺい率 60 % 駐車場
容積率 150 % 土地権利 所有権
地目 宅地 私道負担面積
建築条件 接道状況
都市計画区域 市街化区域 用途地域 第1種低層住居専用地域
現況 完成済 他の法令上の制限 宅地造成等工事規制区域
取引態様 売主 引渡日 相談
設備
  • 室内洗濯機置場
  • バス・トイレ別
  • 2階以上
  • フローリング
  • 駐車場付
  • システムキッチン
  • カウンターキッチン
  • TV付インターホン
  • 都市ガス
  • 間取り図・写真有り
  • 駐輪場
  • バイク置場
学校区 西須磨学校、鷹取中学校
備考
周辺地図
  • この物件について問い合わせる
  • 検索条件を変更

    下記に必要な項目を入力後「確認画面へ」ボタンをクリックしてください。

    物件名
    氏名 必須
    ふりがな 必須
    電話番号 必須
    FAX番号
    メールアドレス 必須
    郵便番号
    住所
    お問い合わせ概要 必須
    その他お問い合わせ内容

    お客様がご希望する物件を、アイビスGROUPがお探しします!

    上記にご要望を満たす物件が登録されていない場合 お客様がご希望する物件を、アイビスGROUPがお探しします!

    お客様がご希望する物件を、アイビスGROUPがお探しします!

    TOPへ
    私たちは神戸市内に営業エリアを限定しています
    神戸買い替えシステム神戸探建たい バナー神戸リノベーション倶楽部 バナー
    0788610220来店予約・お問い合わせはこちらこのページの先頭へ