1. ホーム
  2. 新築物件情報検索
  3. 物件詳細

神戸で新築・中古住宅購入なら、神戸で50年の実績。アイビスグループ

新築・中古住宅を買う

不動産・建築

神戸市内限定の
多様なご提案

一戸建て ★安心安全な耐震等級3取得
☆夏は涼しく冬は暖かい全熱交換型換気システム『せせらぎ』を採用
★肌触りの心地よい無垢フローリング採用

★安心安全な耐震等級3取得
☆夏は涼しく冬は暖かい全熱交換型換気システム『せせらぎ』を採用
★肌触りの心地よい無垢フローリング採用
価格
5,580 万円
交通
阪神本線「魚崎」駅徒歩11分 / JR東海道本線「住吉」駅 徒歩8分
所在地
神戸市東灘区魚崎中町2
築年月
2025年12月
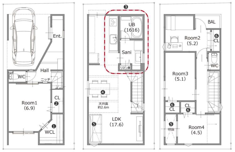
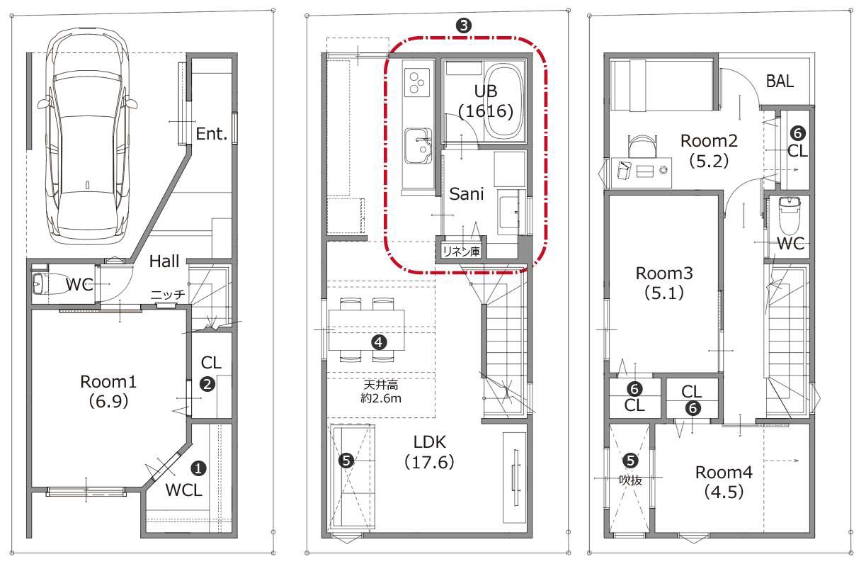
建物面積
111.23 m2
土地面積
55.91 m2
間取り
4LDK
物件番号
a20260226-Y05
  • 室内洗濯機置場
  • バス・トイレ別
  • 2階以上
  • フローリング
  • 駐車場付
  • システムキッチン
  • カウンターキッチン
  • TV付インターホン
  • 都市ガス
  • 間取り図・写真有り
  • 床暖房
  • ロフト
  • 駐輪場
  • バイク置場

物件詳細

物件種別 一戸建て 建物構造 木造
建ぺい率 60 % 駐車場
容積率 200 % 土地権利 所有権
地目 宅地 私道負担面積
建築条件 接道状況
都市計画区域 市街化区域 用途地域 第1種中高層住居専用地域
現況 完成済み 他の法令上の制限 宅地造成等工事規制区域
取引態様 媒介 引渡日 相談
設備
  • 室内洗濯機置場
  • バス・トイレ別
  • 2階以上
  • フローリング
  • 駐車場付
  • システムキッチン
  • カウンターキッチン
  • TV付インターホン
  • 都市ガス
  • 間取り図・写真有り
  • 床暖房
  • ロフト
  • 駐輪場
  • バイク置場
学校区 住吉小学校、住吉中学校
備考
周辺地図
  • この物件について問い合わせる
  • 検索条件を変更

    下記に必要な項目を入力後「確認画面へ」ボタンをクリックしてください。

    物件名
    氏名 必須
    ふりがな 必須
    電話番号 必須
    FAX番号
    メールアドレス 必須
    郵便番号
    住所
    お問い合わせ概要 必須
    その他お問い合わせ内容

    お客様がご希望する物件を、アイビスGROUPがお探しします!

    上記にご要望を満たす物件が登録されていない場合 お客様がご希望する物件を、アイビスGROUPがお探しします!

    お客様がご希望する物件を、アイビスGROUPがお探しします!

    TOPへ
    私たちは神戸市内に営業エリアを限定しています
    神戸買い替えシステム神戸探建たい バナー神戸リノベーション倶楽部 バナー
    0788610220来店予約・お問い合わせはこちらこのページの先頭へ