1. ホーム
  2. 新築物件情報検索
  3. 物件詳細

神戸で新築・中古住宅購入なら、神戸で40年の実績。アイビスグループ

新築・中古住宅を買う

不動産・建築

神戸市内限定の
多様なご提案

一戸建て ■断熱等級66(UA 値:0.460.46)BELS 評価書取得(ZEH 水準適合)
■許容応力度計算で取得した「耐震等級3」+油圧式制震ダンパー
■社内&第三者のWチェック体制第三者機関による施工品質監査を導入
■太陽光パネル3.60 kWh 設置自家利用&売電で光熱費大幅カット
■設備充実タッチレス水栓・深型食洗機・ガス衣類乾燥機「乾太くん」

■断熱等級66(UA 値:0.460.46)BELS 評価書取得(ZEH 水準適合)
■許容応力度計算で取得した「耐震等級3」+油圧式制震ダンパー
■社内&第三者のWチェック体制第三者機関による施工品質監査を導入
■太陽光パネル3.60 kWh 設置自家利用&売電で光熱費大幅カット
■設備充実タッチレス水栓・深型食洗機・ガス衣類乾燥機「乾太くん」
価格
4,180 万円
交通
神鉄有馬線「鈴蘭台」駅 徒歩7分
所在地
神戸市北区鈴蘭台南町7
築年月
2025年8月
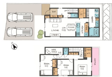
建物面積
97.19 m2
土地面積
127.93 m2
間取り
4LDK
物件番号
a20251004-Y06
  • 室内洗濯機置場
  • バス・トイレ別
  • 2階以上
  • 都市ガス

物件詳細

物件種別 一戸建て 建物構造 木造軸組2階建
建ぺい率 50 % 駐車場 有り
容積率 100 % 土地権利 所有権
地目 宅地 私道負担面積
建築条件 接道状況 西側:公道幅員約4.2m
都市計画区域 市街化区域 用途地域 第1種低層住居専用地域
現況 完成 他の法令上の制限
取引態様 媒介 引渡日 相談
設備
  • 室内洗濯機置場
  • バス・トイレ別
  • 2階以上
  • 都市ガス
学校区 鈴蘭台小学校
鈴蘭台中学校
備考
周辺地図
  • この物件について問い合わせる
  • 検索条件を変更

    下記に必要な項目を入力後「確認画面へ」ボタンをクリックしてください。

    物件名
    氏名 必須
    ふりがな 必須
    電話番号 必須
    FAX番号
    メールアドレス 必須
    郵便番号
    住所
    お問い合わせ概要 必須
    その他お問い合わせ内容

    お客様がご希望する物件を、アイビスGROUPがお探しします!

    上記にご要望を満たす物件が登録されていない場合 お客様がご希望する物件を、アイビスGROUPがお探しします!

    お客様がご希望する物件を、アイビスGROUPがお探しします!

    TOPへ
    私たちは神戸市内に営業エリアを限定しています
    神戸買い替えシステム神戸探建たい バナー神戸リノベーション倶楽部 バナー
    0788610220来店予約・お問い合わせはこちらこのページの先頭へ