HOME
注文住宅を建てる
若年層子育て世代の家
シニア二世帯住宅
単身少人数住宅
新築・中古住宅を買う
土地探し+注文住宅
中古住宅+リノベ
賃貸住宅を探す
家をリフォームする
リフォームTOP
Re神戸とは?
リフォームの種類
リフォームの流れ
リノベーション
会社案内
会社概要・アクセス
神戸密着宣言
代表からひとこと
スタッフ・協力会社募集
toggle navigation
アイビスGROUP
HOME
注文住宅を建てる
若年層子育て世代の家
シニア二世帯住宅
単身少人数住宅
建て替えのお手伝い
土地探し+注文住宅
新築・中古住宅を買う
家をリフォームする
中古住宅探し+リノベーション
賃貸住宅を探す
会社案内
不動産の売却・活用・相続をお考えの方はこちら
スタッフ・協力会社募集
公式SNS
ホーム
土地情報検索
物件詳細
新築・中古住宅を買う
新築住宅を購入
中古住宅+リノベーション
土地+注文住宅
買い替え
土地を神戸でお探しの方へなら、神戸で50年の実績。アイビスGROUP
神戸市内限定の
多様なご提案
新築住宅を購入
中古住宅+リノベーション
土地+注文住宅
買い替え
土地
★建築条件有
☆公道(北側幅員約6.3m)に約7.48m接道
★北西角地の高台に立地し、通風・日当たり及び眺望良好な立地条件♪
☆バス停『五毛天神』徒歩約3分!
★建築条件有
☆公道(北側幅員約6.3m)に約7.48m接道
★北西角地の高台に立地し、通風・日当たり及び眺望良好な立地条件♪
☆バス停『五毛天神』徒歩約3分!
5,980
万円
阪急神戸線「王子公園」駅 徒歩17分
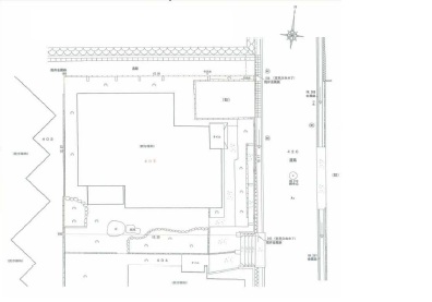
兵庫県神戸市中央区野崎通2
197.56 m
2
東側:公道幅員約5mに接面13.17ⅿ
古家有
なし
60 %
150 %
物件番号
b20260214-Y01
敷地図
現況
接道1
接道2
物件詳細
物件種別
土地
地目
宅地
私道負担面積
地勢
傾斜地
土地権利
所有権
用途地域
第1種低層住居専用地域
都市計画区域
市街化区域
他の法令上の制限
第1種高度地区、準防火地域、絶対高さ10m
引渡日
相談
取引態様
一般媒介
設備
水道:公営
汚水:本下水
ガス:都市ガス
雑排水:本下水
学校区
上筒井小学校
筒井台中学校
備考
周辺地図
下記に必要な項目を入力後「確認画面へ」ボタンをクリックしてください。
物件名
氏名
必須
ふりがな
必須
電話番号
必須
FAX番号
メールアドレス
必須
郵便番号
住所
お問い合わせ概要
必須
物件についてもっと詳しい情報がほしい
店舗に行って相談したい
周辺の環境や施設を詳しく知りたい
条件に合う他の物件も紹介してほしい
とりあえず連絡がほしい
その他お問い合わせ内容
私たちは神戸市内に営業エリアを限定しています