HOME
注文住宅を建てる
若年層子育て世代の家
シニア二世帯住宅
単身少人数住宅
新築・中古住宅を買う
土地探し+注文住宅
中古住宅+リノベ
賃貸住宅を探す
家をリフォームする
リフォームTOP
Re神戸とは?
リフォームの種類
リフォームの流れ
リノベーション
会社案内
会社概要・アクセス
神戸密着宣言
代表からひとこと
スタッフ・協力会社募集
toggle navigation
アイビスGROUP
HOME
注文住宅を建てる
若年層子育て世代の家
シニア二世帯住宅
単身少人数住宅
建て替えのお手伝い
土地探し+注文住宅
新築・中古住宅を買う
家をリフォームする
中古住宅探し+リノベーション
賃貸住宅を探す
会社案内
不動産の売却・活用・相続をお考えの方はこちら
スタッフ・協力会社募集
公式SNS
ホーム
土地情報検索
物件詳細
新築・中古住宅を買う
新築住宅を購入
中古住宅+リノベーション
土地+注文住宅
買い替え
土地を神戸でお探しの方へなら、神戸で50年の実績。アイビスGROUP
神戸市内限定の
多様なご提案
新築住宅を購入
中古住宅+リノベーション
土地+注文住宅
買い替え
土地
★阪神御影駅徒歩10分
☆お好きなハウスメーカーで建築可能です
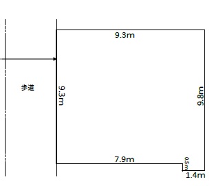
★間口約9.3mの整形地
☆弓場線に面しています
★阪神御影駅徒歩10分
☆お好きなハウスメーカーで建築可能です
★間口約9.3mの整形地
☆弓場線に面しています
3,480
万円
阪急神戸線「御影」駅 徒歩10分
兵庫県神戸市東灘区御影本町3
88.23 m
2
西側約22m 公道
更地
無
60 %
200 %
物件番号
a2026011-Y04
敷地図
外観1
外観2
接道
物件詳細
物件種別
土地
地目
宅地
私道負担面積
地勢
平坦
土地権利
所有権
用途地域
準工業地域
都市計画区域
市街化区域
他の法令上の制限
第5種高度地区、準防火地域
引渡日
相談
取引態様
媒介
設備
公営水道
都市ガス
公共下水
学校区
御影小学校
御影中学校
備考
周辺地図
下記に必要な項目を入力後「確認画面へ」ボタンをクリックしてください。
物件名
氏名
必須
ふりがな
必須
電話番号
必須
FAX番号
メールアドレス
必須
郵便番号
住所
お問い合わせ概要
必須
物件についてもっと詳しい情報がほしい
店舗に行って相談したい
周辺の環境や施設を詳しく知りたい
条件に合う他の物件も紹介してほしい
とりあえず連絡がほしい
その他お問い合わせ内容
私たちは神戸市内に営業エリアを限定しています