1. ホーム
  2. 新築物件情報検索
  3. 物件詳細

神戸で新築・中古住宅購入なら、神戸で50年の実績。アイビスグループ

新築・中古住宅を買う

不動産・建築

神戸市内限定の
多様なご提案

一戸建て

価格
5,980 万円
交通
阪神本線「大石」駅 徒歩8分 / JR東海道本線「摩耶」駅 徒歩8分
所在地
兵庫県神戸市灘区灘南通
築年月
2025年3月
建物面積
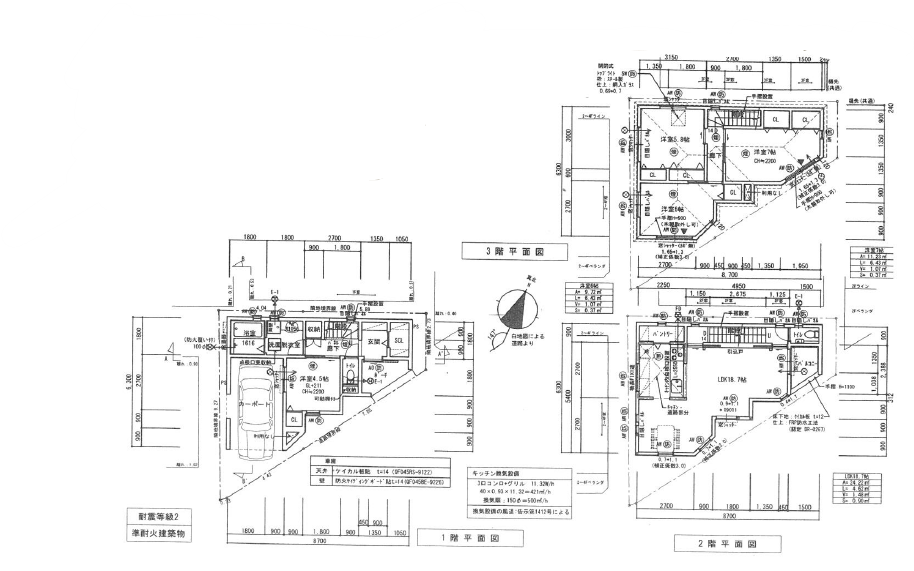
116.19 m2
土地面積
59.25 m2
間取り
4LDK
物件番号
a20250612-K12

物件詳細

物件種別 一戸建て 建物構造 木造2階建
建ぺい率 60 % 駐車場 あり
容積率 200 % 土地権利 所有権
地目 宅地 私道負担面積
建築条件 接道状況 南側公道幅員5.92m
都市計画区域 市街化区域 用途地域 第1種住居地域
現況 完成済み 他の法令上の制限 第5種高度地区・準防火地域
取引態様 一般媒介 引渡日 相談
設備
学校区 西灘小学校
原田中学校
備考 建物面積には自動車車庫面積10.14㎡を含む
周辺地図
  • この物件について問い合わせる
  • 検索条件を変更

    下記に必要な項目を入力後「確認画面へ」ボタンをクリックしてください。

    物件名
    氏名 必須
    ふりがな 必須
    電話番号 必須
    FAX番号
    メールアドレス 必須
    郵便番号
    住所
    お問い合わせ概要 必須
    その他お問い合わせ内容

    お客様がご希望する物件を、アイビスGROUPがお探しします!

    上記にご要望を満たす物件が登録されていない場合 お客様がご希望する物件を、アイビスGROUPがお探しします!

    お客様がご希望する物件を、アイビスGROUPがお探しします!

    TOPへ
    私たちは神戸市内に営業エリアを限定しています
    神戸買い替えシステム神戸探建たい バナー神戸リノベーション倶楽部 バナー
    0788610220来店予約・お問い合わせはこちらこのページの先頭へ